Back to Previous Page 1202 E SAINT FRANCIS ST
OFFICE/WAREHOUSE FLEX BLDG
$1,250,000
Bldg 11,600 SF | Land 0.8 Acres | Class A | 2 Stories
Property Information
List Price $1,250,000
Zoning General Commercial
Bldg SF 11,600
Year Built 1997
County Pennington
Acres 0.8
Bldg Class A
Property Overview
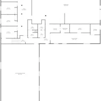
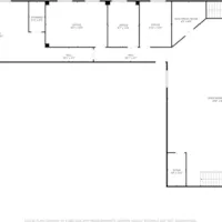
Introducing a versatile commercial property in a central location offering exceptional functionality and room to grow. This 11,600 SF building sits on .80-acres and is a combination of office and industrial space. The interior features lots of open space with over 2,500sf of warehouse accessed by a 10’x12’ overhead door, a large event room on the main level and another gathering space on the second level. There are 7 individual offices, lots of storage space, a conference room, and men’s and women’s restrooms. The parking lot has20 parking spaces, and the neighboring vacant lots provides opportunity for expansion or additional parking. The flexible layout and central location make this property well-suited for a variety of business operations.
Highlights
⊲11,600 SF Flex Building ideal for Office or Warehouse uses
⊲ Building sits on a .48 acre lot and the two neighboring .16 acres lots
are included
⊲ Over 2500 SF of Warehouse w/ 10’x12’ OH Door
⊲ 7 Offices and a Conference Room
⊲ Large Event/Gathering Room
⊲ Central Location with St Patrick daily vehicle traffic of 10,600+
⊲ Plenty of windows allowing for natural light throughout the space
⊲ Video Link: https://youtu.be/EnpGB0PVYtQ
Listing Agents
Commercial Broker
Chris began his career in Denver, CO as a research associate for The Meyers Group. During his time in this position, he led the new development research group and published monthly reports on sales trends and absorption rates in the local market.In 2003 he joined UDR, Inc., a national real estate investment trust focused on the multifamily sector. During his tenure with UDR, he held positions of financial analyst, operational strategist and 4 years as Director of Pricing and Revenue Management. Chris led a team in a nationwide rollout of yield management software for over 230 properties which led to industry wide adoption and industry leading revenue growth.After moving to South Dakota in 2010, Chris joined Sandra Runde and formed the only team in Western South Dakota solely focused on commercial real estate sales and leasing. Over the past 12 years, the KW Commercial team has led the market in both commercial sales and commercial leasing volume. In the last 3 years his team has sold and leased nearly $200 Million in real estate placing them #1 in the North Central Region and ranked in the top 10 for KW Commercial nationwide.
Broker Associate
Having grown up in the Black Hills, moving back was an easy choice for Dan after finishing his contract with the Army. During those years he served as a combat medic and was stationed in Germany and Colorado working primarily alongside infantry and military police units.Upon returning to Rapid City, he enrolled with Black Hills State University and recently graduated with a degree in Business Management. During this time, he also obtained his Real Estate License and began work with the Rapid City Commercial Team. He is eager to assist business owners and investors navigate their commercial real estate decisions and create win-win deals for both parties in a transaction.














