Back to Previous Page 1301 W Omaha Suite 212
Suites at The Plaza Downtown Rapid City
$15.00/SF/YR
Bldg 1,865 SF | Land 3.63 Acres | Class A
Property Information
Zoning General Commercial
Bldg SF 1,865
County 57701
Acres 3.63
Bldg Class A
Property Overview
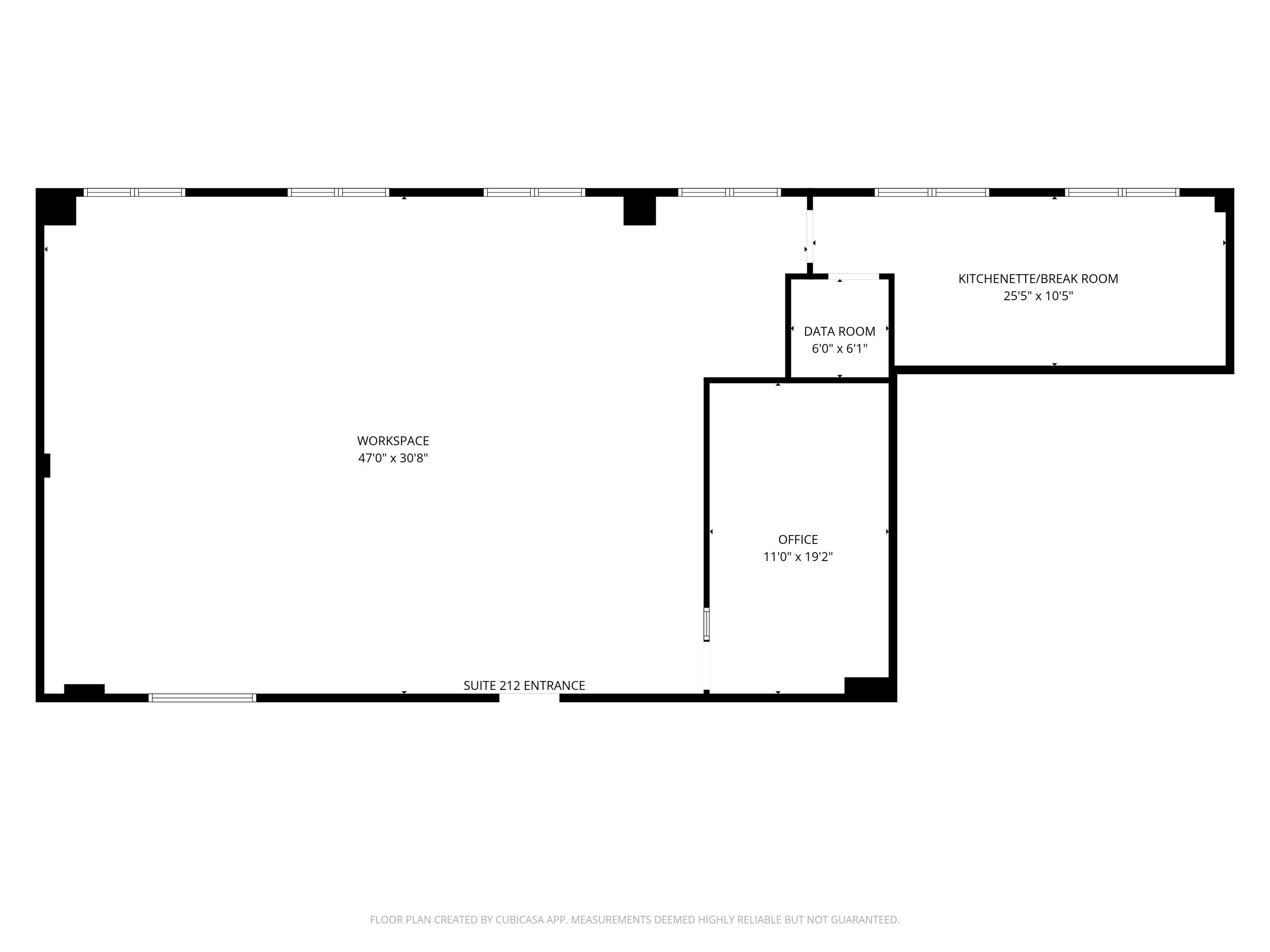
S U I T E 2 1 2
Prime office opportunity in the highly desirable Class A Omaha Plaza! This 1,865 SF second-floor office suite offers elevator access and excellent visibility along high-traffic Omaha Street, just minutes from I-90 and Mt. Rushmore Road. The suite features an open concept workspace, conference room, storage room, and a spacious break room with kitchenette. Common area restrooms and lobby provide convenience for tenants and visitors. Building marquee signage along Omaha Street offers premium exposure, and the property boasts plentiful parking for both employees and clients. Ideal setting for professional services seeking a central, accessible location. Leases for$15.00/SF/YR + est. $8.60/SF/YR NNN (Est. $3,667.83 per month).
Highlights
S U I T E 2 1 2
⊲ Prime location in highly desirable, Class A Omaha Plaza with retail suites on the 1st floor and professional services offices on the 2nd floor
⊲ Premium 2nd floor office suite with elevator access located on high traffic artery Omaha Street, close to I-90 & Mt Rushmore Rd
⊲ 1,865 SF with open concept workspace, conference room, storage room, and large break room/kitchenette
⊲ Common area restrooms and lobby area
⊲ Signage available on the building marquee signs along Omaha St.
⊲ Easy, plentiful parking for employees & clients
Listing Agents
Commercial Broker
Chris began his career in Denver, CO as a research associate for The Meyers Group. During his time in this position, he led the new development research group and published monthly reports on sales trends and absorption rates in the local market.In 2003 he joined UDR, Inc., a national real estate investment trust focused on the multifamily sector. During his tenure with UDR, he held positions of financial analyst, operational strategist and 4 years as Director of Pricing and Revenue Management. Chris led a team in a nationwide rollout of yield management software for over 230 properties which led to industry wide adoption and industry leading revenue growth.After moving to South Dakota in 2010, Chris joined Sandra Runde and formed the only team in Western South Dakota solely focused on commercial real estate sales and leasing. Over the past 12 years, the KW Commercial team has led the market in both commercial sales and commercial leasing volume. In the last 3 years his team has sold and leased nearly $200 Million in real estate placing them #1 in the North Central Region and ranked in the top 10 for KW Commercial nationwide.
Leasing Agent
With 18 years of experience wearing many hats throughout her commercial real estate career, Gina started her real estate journey with corporate firm JLL as a brokerage coordinator for their Chicago industrial team, supporting their business development, supply chain consulting and site selection projects. After returning home to South Dakota, she joined KW Commercial in June of 2017 as marketing & listing coordinator, becoming familiar with Rapid City’s market and changing focus from business-to-business sales to direct-to-consumer marketing. Recognizing the steady growth of the area and the opportunity to make an impact, in 2021, Gina took the natural next step to leasing agent helping tenants and landlords lease commercial property in an increasingly competitive market.







